新闻
体育
汽车
房产
旅游
教育
时尚
科技
财经
娱乐
母婴
更多
icon_Unfold
健康
历史
军事
美食
文化
星座
专题
游戏
搞笑
动漫
宠物
无障碍
最新
DN800管中型内置防倒灌器工程案例解析(实拍场景图)
菲源管中型内置防倒灌器采用不锈钢膨胀卡箍安装,每个卡箍按厂家安装指导要求预钻固定孔,用于防倒灌器的销接和固定。安装时,防倒灌器下游应与管道在整个圆周方向上全面接触。结果是节约安装维护时间和运行成本。
2023.10.16
·
1.5万阅读
·
0评论
加载中
管中型内置防倒灌器优势及部分工程案例图解
管中型内置防倒灌器具有水头损失低、排空灵敏、异味控制、免维护和耐腐蚀等优点。适用于截流管、集水井和阀门井等构筑物,是防止水倒流到污水处理厂的理想产品。菲源管中型内置防倒灌器已经成为必须具备独立防倒流保护措施的商业区和住宅区的常用解决方案。
2023.10.11
·
1.6万阅读
·
0评论
加载中
兰考县产业集聚区中水回用项目一体化泵站
兰考县产业集聚区中水回用项目是一个污水处理及再利用的综合性项目,包括污水处理和回用两个核心部分。污水处理通过物理、生物和化学处理步骤,去除污水中的污染物质,实现水质净化。
2023.10.09
·
1.6万阅读
·
0评论
加载中
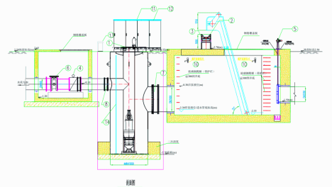
管中型内置防倒灌器案例解析
本文介绍了沿江、河、湖路区域现状排水体制存在的问题以及菲源管中型内置防倒灌设备的原理和安装要求。在晴天工况下,河、湖等自然水体潮位较高时会通过截污井倒灌进入该处防倒灌井,导致外水入侵和管网满负荷运行。
2023.10.08
·
1.6万阅读
·
0评论
加载中
贺中秋迎国庆——菲源最美好的祝福
让我们一起让我们回味那些陪伴我们的美好时光让我们在这个举国欢庆的日子里向那些曾经为我们付出过的人们表示最崇高的敬意让我们有了一个更美好的家园让我们有了更坚定的前行力量让我们把祝福送给每一个人愿我们在这个金秋的…
2023.09.28
·
1.7万阅读
·
0评论
加载中
海绵城市-低影响开发雨水系统构建(图文)
低影响开发(LID)是一种在场地开发过程中采用源头、分散式措施维持场地开发前的水文特征,以维持场地开发前后水文特征不变。其核心是通过渗、滞、蓄、净、用、排等多种技术,实现城市良性水文循环,提高对径流雨水的渗透、调蓄、净化、利用和排放能...
2023.09.25
·
1.4万阅读
·
0评论
加载中
浮动挡板技术指标说明
承包商在上述设备安装前,应对建成构筑物的相关土建尺寸,进行核对,并提出详细记录,对不符合安装条件的部分,应向监理工程师报告,经批准及修正后,方可安装。 3、抗风浪能力:在强风、大浪等恶劣天气条件下,浮动挡板应能够保持稳定,不发生漂移或…
2023.09.11
·
1.2万阅读
·
0评论
加载中
一体化雨水泵站一般使用什么水泵?为什么?
一体化雨水泵站的水泵选择会参考设计的流量和扬程,根据实际情况确定流量,而水泵扬程的大小与进水侧水位和排入水位有关。 设计一体化雨水泵站时,如何参考流量和扬程的设计 6、水泵的安装和维护:在设计一体化雨水泵站时,要考虑到水…
2023.09.04
·
1.2万阅读
·
0评论
加载中
一体化轴流泵站在农田灌溉中的应用
大流量一体化轴流泵站是一种结合了轴流泵技术和自动化系统的一体化泵站设备,具有更高的性能和效率。在农田灌溉中,大流量轴流泵站可以将水源的水通过泵站的加压作用,输送到农田中,实现灌溉的目的。整个灌溉过程中,大流量一体化轴流泵站实现了高效、自…
2023.09.01
·
1.2万阅读
·
0评论
加载中
什么是传统合(分)建式排水泵站?有什么优缺点?
当水泵台数超过4台时,地下及地上部分都可以采用矩形或由矩形组合成的多边形;地下部分有时为了发挥圆形结构比较经济和便于沉并施工的优点,也可以来取将集水池和机器间分开为两个构筑物的布置方式,或者将水泵分设在两个地下的圆形构筑物内,地上部分可以…
2023.08.31
·
1.5万阅读
·
0评论
加载中
什么是轴流泵?一体化轴流泵站应用领域及特点
一体化轴流泵站的核心设备是轴流泵,它通过旋转的叶轮产生离心力,将液体从中心轴吸入,在叶轮的推动下向上流动,最终通过出口管排出。在一体化泵站中,电机通常为交流电机,其工作原理是通过交流电流在电线圈中产生旋…
2023.08.28
·
1.5万阅读
·
0评论
加载中
为什么水泵叶轮总是因垃圾堵塞而损坏?盘点水泵叶轮的种类优劣势
叶片式叶轮:分为开式、半开式和闭式,这种类型的叶轮适用于泵送含有一定固体颗粒的介质。开式叶轮具有很好的抗堵塞和自清洁能力,这是由于其开放式结构能够有效地防止杂物和污物积聚在叶片上,从而减少了堵塞的发生。与闭式…
2023.08.23
·
1.6万阅读
·
0评论
加载中
不锈钢渠道闸门的技术参数及特点
不锈钢渠道闸门的主要特点:4、不锈钢制作,防腐性能好; 1、形式:不锈钢渠道闸门。 2、结构:本设备主要由闸门(门框、闸板)、密封条、吊块螺母等部件组成。具有结构合理、封闭性好、安装、调整、使用、维…
2023.08.17
·
1.6万阅读
·
0评论
加载中
检查井为什么一定要做成流槽式?其作用是什么?
1、改善水流条件:流槽式的设计可以引导水流更加顺畅地进入管道,改善了水流条件,避免了水流在检查井内形成涡流或死水区,从而减少了管道的堵塞和磨损。 2、提高排水效率:通过流槽式结构,水流可以更…
2023.08.11
·
1.7万阅读
·
0评论
加载中
超大流量一体化轴流泵站垃圾堵塞解决方案
5、泵站前需要精细预处理:在一体化轴流泵站前,需要使用回转式格栅机进行精细的预处理,以去除污水中可能存在的固体杂质和大颗粒物,确保泵站和后续处理设备的正常运行。 6、需要高效除污:在泵站的进口处,使…
2023.08.10
·
1.6万阅读
·
0评论
加载中
污水直排长江被抓“现行”企业良心发黑发臭,雨污分流任重道远
为了防止污水直排,需要采取一系列措施,如建设雨水管道和污水管道,将雨水与污水分开排放,加强监管,严格控制污水排放标准,并通过宣传教育提高公众环保意识。部分企业可能需要妥善处理调节,搭建搜集管道,在必要时搭建污…
2023.08.07
·
1.7万阅读
·
0评论
加载中
沉湖湿地生态修复变身鸟类天堂——一体化排水泵站与湿地生态相互协调
1、排水管道:排水管道是常见的排水设施之一,可以将污水或雨水从生态湿地中排放出去。 2、一体化排水泵站:在湿地中需要排放大量水时,可以使用一体化排水泵站来提升水位,将水排放到更高的位置。 …
2023.07.31
·
1.7万阅读
·
0评论
加载中
暴雨暴雨杜苏芮台风升级为超强台风对安徽形成影响
在城市排水管道中安装内置防倒灌器,可以在强降雨时阻止污水从较低的地方回流到城市排水系统,从而防止水位上涨和对城市环境的破坏。在污水系统中安装污水提升泵站,可以有效地解决强降雨导致的污水系统超负荷问题,减少污水…
2023.07.27
·
1.7万阅读
·
0评论
加载中
00:53
预制树脂混凝土截流井雨污分流利器,内置防倒灌器防止河湖水倒灌
预制树脂混凝土截流井更环保更耐腐蚀性价比更高的雨污分流利器,内置防倒灌器防止河湖水倒灌
2023.07.13
·
1.7万阅读
·
0评论
加载中
01:19
雨污废水泵站垃圾太多堵塞水泵怎么办?全新一代泵站一招解决
雨污废水泵站垃圾太多堵塞水泵怎么办?全新一代泵站一招解决,前置一体化闸门井提前截留垃圾,减少泵站堵塞,提供工作效率
2023.07.10
·
1.8万阅读
·
0评论
加载中
梦想时刻
329.4万+
阅读
317
内容
42
订阅
12
获赞
+订阅
奇事趣事,搞笑幽默,散文社会新闻
注册信息
分享作者至
24小时热文
更多
死磕“卡脖子”技术!新任院士黄维娜,成为省级党政一把手的“座上宾”
广东汕头一住宅突发火灾,造成8人死亡4人受伤,官方通报:起火建筑为一栋4层钢筋混凝土结构自建房
中国留德女博士与女儿遇害,丈夫涉嫌故意杀人 同学筹款帮家属赴德讨回公道
寒潮蓝警发布:今起我国大部将出现大风降温,局地最高降16℃
“南航拒绝赔偿,也没有书面道歉”
韩总统府回应高市早苗:将对日本就独岛提出的任何不当主张予以坚决严厉回应
支付中心
- 搜狐招聘
- 广告服务
- 联系方式
- About SOHU
- 公司介绍
- 隐私政策
Copyright © 2025 Sohu All Rights Reserved. 搜狐公司 版权所有